9332彩票网

恒温恒湿试验机用活塞式压缩机各种典型全体构


★恒温恒湿试验机活塞式压缩机的全体构造与运用的制冷剂、工况、冷负荷以及出产、设备本钱等要素有关。大体上可分为单机和多机组合机组两大类。
★按压缩机的密封方法分类,压缩机可分为敞开式,半关闭式和全关闭式三种。
★敞开式制冷压缩机
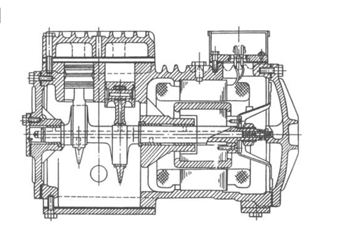
恒温恒湿试验机敞开式压缩机的曲轴功率输入端伸出机体,经过联轴器或带轮和原动机相连接。它的特色是简单拆开、修理,但密封性较差,工质易走漏,因此曲轴外伸端有轴封设备。
★图2-48示出压缩机的全体构造剖面图。
 活塞式压缩机的全体构造剖面图
 
 
★这种缸径的系列有2、4、6、8缸,行程有100mm、110mm两种,按氨、R12、R22三工质通用请求规划,运用不一样制冷剂时,只需替换相应的安全阀及气阀绷簧等。
★半关闭式制冷压缩机:
★半关闭式制冷压缩机的电动机和压缩机装在同一机体内并共用同一根主轴,因此不需要轴封设备,避免了轴封处的制冷剂走漏。图2-49示出型压缩机的构造总图。
 
 活塞式压缩机全体构造总图
 半关闭式压缩机的构造总图
 
★图2-50示出另一种半关闭式压缩机的构造总图。
 
国产型全关闭压缩机剖面图
 



★全关闭式制冷压缩机的特色,是将压缩机与电动机一同组装在一个密闭的罩壳内,构成一个全体,从外表上看只要压缩机进、排气管和电动机引线。
★图2-51为国产型全关闭压缩机剖面图。压缩机的外部罩壳由钢板冲压而成,分上下两部分,安装结束后焊死。它比半关闭压缩机更为紧凑,密封性非常好。
 
滑管滑块和曲轴、气缸装配图 
 
★在一些医用及家用冰箱中,为了进一步简化压缩机的构造,选用滑管滑块式组织来替代连杆组件,如图2-52所示。图2-52是滑管式全关闭压缩机的剖面图。


编辑-----小亦
发布-----菲红


上一篇:深圳中创仪器解析恒温恒湿试验箱厂家如何提高 下一篇:环境试验设备制冷专用螺杆式制冷压缩机基本参
 U9彩票799cc-u9彩票799绿色-绿色U9彩票旧版-u9彩票799手机版 彩运网888 - 首页 富彩vip登录|首页 2468彩票网 彩运网888 - 首页 新币彩票|登录 9759彩集团 - 首页 1336cc盈彩网 - 首页